ビレッジハウス士別2号棟 /0208 の詳細情報はこちらから。

旭川の賃貸マンション・アパート不動産情報満載!旭川駅前店

旭川駅前店 0166-25-7222

ビレッジハウス士別2号棟 /0208

物件概要

この物件の情報を印刷する

賃料 30,000
住所 北海道士別市大通東15丁目3144-173
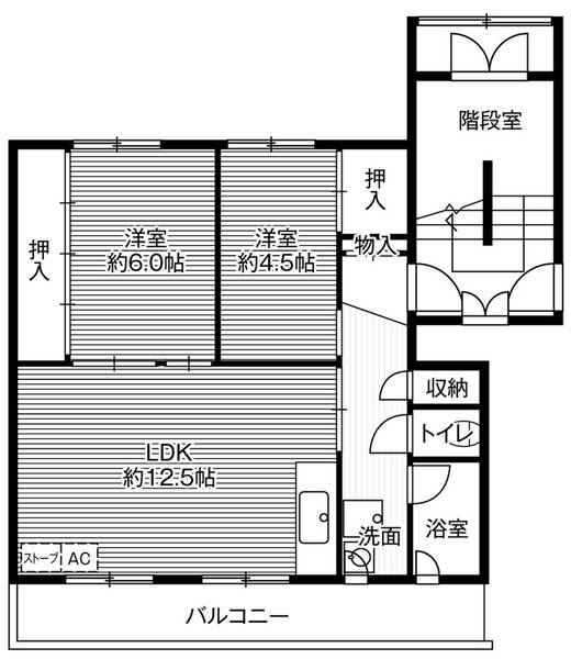
間取 2LDK
面積 53.21m²

設備

バス・トイレ別、室内洗濯機置き場、ガスキッチン、追焚き機能、バルコニー、角部屋、コンロ2口以上、独立洗面所、二人入居可、高齢者向け、LPG、仲介手数料不要

周辺地図

物件情報

敷金 - 礼金 -
構造 鉄筋コンクリート造 階建・号室 5階建 0208号室
築年月 1982-07-01 入居 即入居
駐車場 敷地内あり 2200 条件
総戸数 80 取扱店舗・物件コード 17197052120792
部屋の特徴・設備 バス・トイレ別、室内洗濯機置き場、ガスキッチン、追焚き機能、バルコニー、角部屋、コンロ2口以上、独立洗面所、二人入居可、高齢者向け、LPG、仲介手数料不要
セールスポイント バルコニー付きのお部屋★
備考 寒い時期に便利な追い炊き機能完備
宅建免許 北海道知事上川 (11) 第660号

店舗情報

アパマンショップ旭川駅前店

店舗は旭川市内中心部にあり、旭川駅から徒歩3分。 お車の方は近くに指定駐車場もご用意してありますので、ご安心ください。

住所

〒070-0030 旭川市宮下通9丁目780-1

TEL / FAX

TEL:0166-25-7222 / FAX:0166-25-7225

物件についてのお問い合わせ

お問合わせフォームは24時間365日受付中。は必須入力項目になります

お問合せ先店舗
物件番号 17197052120792
問合せ内容について

物件の詳細をもっと知りたい

物件が空いているかを確認したい

物件の周辺について知りたい

物件を観に行きたい

条件に合う他の物件も知りたい

その他質問など

お名前

フリガナ

性別

年齢

10代 20代 30代 40代 50代~

当サイトを知ったきっかけ

DM ご紹介 検索エンジン その他

E-mail

※半角英数字

携帯mail

※半角英数字

TEL

※半角数字とハイフンのみ

FAX

※半角数字とハイフンのみ

希望連絡方法

Email 携帯メールアドレス TEL FAX

※当社「個人情報のお取り扱いについて」を必ずお読みください。

 個人情報の取扱いについて

1.事業者の名称

株式会社 リアルター

2.管理者(若しくはその代理人)の氏名又は職名、所属及び連絡先

管理者名:個人情報保護管理者 小川 恭平

所属部署:株式会社リアルター

連絡先:電話0166-73-7650

3.個人情報の利用目的

1. 不動産物件の紹介

2. 不動産物件の調査

3. お申込の受付と管理

4. お問合せやご質問の受付と回答

5. お客様にとって有用と思われる情報の提供

6. サービス内容の分析、向上

4.個人情報の第三者提供

お問い合わせ内容が不動産の賃貸仲介・売買仲介の場合、以下の要領で第三者に提供する場合がございます。

(1)第三者に提供する目的

不動産の賃貸仲介・売買仲介のため

(2)提供する個人情報の項目

氏名、生年月日、住所、電話番号、Eメールアドレス等

(3)提供の手段又は方法

入居申込書等、契約書面に記載の上、提供します

(4)提供を受ける者の組織の種類、属性

不動産の賃貸仲介・売買仲介における相手方


共同利用について

当社では、お客様により有益な情報提供をするためにリアルターグループとして総合的にお客様情報を共同利用し、サポートしております。

共同利用する情報は、氏名、連絡先、物件情報、物件入居状況です。

共同利用する範囲は、当社ホームページ記載の関連会社の範囲です。

共同利用に関する取りまとめは、株式会社リアルターの個人情報保護管理者が行っております。

5.個人情報取扱いの委託

当社は事業運営上、お客様により良いサービスを提供するために業務の一部を外部に委託しています。業務委託先に対しては、個人情報を預けることがあります。この場合、個人情報を適切に取り扱っていると認められる委託先を選定し、契約等において個人情報の適正管理・機密保持などによりお客様の個人情報の漏洩防止に必要な事項を取決め、適切な管理を実施させます。

6.個人情報の開示等の請求

お客様は、当社に対してご自身の個人情報の開示等(利用目的の通知、開示、内容の訂正・追加・削除、利用の停止または消去、第三者への提供の停止)に関して、当社「個人情報に関するお問合わせ窓口」に申し出ることができます。その際、当社はお客様ご本人を確認させていただいたうえで、合理的な期間内に対応いたします。開示等の申し出の詳細につきましては、下記の「個人情報に関する苦情・相談窓口」までお問い合わせください。

7.個人情報を提供されることの任意性について

お客様が当社に個人情報を提供されるかどうかは、お客様の任意によるものです。ただし、必要な項目をいただけない場合、各サービス等が適切な状態で提供できない場合があります。

8.ご本人が容易に認識できない方法による取得する場合について

クッキー(Cookies)は、お客さまが当社のサイトに再度訪問された際、より便利に当サイトを閲覧していただくためのものであり、お客さまのプライバシーを侵害するものではなく、またお客さまのコンピューターへ悪影響を及ぼすことはありません。

また当社のサイトでは個人情報を入力していただく部分にはすべてSSL(Secure Sockets Layer)のデータ暗号化システムを利用しております。さらに、サイト内における情報の保護にもファイアーウォールを設置するなどの方策を採っております。ただし、インターネット通信の性格上、セキュリティを完全に保証するものではありません。あらかじめご了承ください。

9.認定個人情報保護団体について

当社が加入する認定個人情報保護団体は、ありません。

【個人情報に関する苦情・相談窓口】

お客様の個人情報に関するお問合せにつきましては、下記窓口で受付けております。

個人情報保護管理者: 小川 恭平

所属部署:株式会社リアルター

〒078-8212北海道旭川市2条通19丁目367番地の2

メールアドレス: [email protected]

電話 0166-73-7650 (受付時間 9:00~18:00)

FAX 0166-32-2111